Modern Home Design – Newton, MA
Modern Home Design Newton, MA Project by Pionarch
Project Description
This modern single-family home is nearly 5,000 square feet and is located in Newton, just outside of Boston, Massachusetts. The house has a beautiful curb appeal due to its shape and features. The cantilevered balconies at the front of the home provide a screen for windows on the sunny sides. The overhang’s ends are decorative to provide playfulness of shadow lines. The beauty of the design depicted in the images includes two car garage doors that are pushed back, dark in color, and hidden under the balcony serving the second-floor bedroom and office. This strategy prioritizes the entry side of the building over the garage side, achieving our mission of creating an attractive three-dimensional sculpture.
Modern Home Project Plan
Through the design options, we quickly discovered we wanted to avoid designing a flat facade or a flat roof. Our objective for the design of this modern house was to offer straight driveway access to limit curb cuts and a clear view of the backyard. The positioning of the front staircase was crucial due to the limited width of the house lot.
We strived for a contemporary exterior by incorporating modern stucco and large-picture windows. Our client preferred earth tones such as brown, beige, and tan over a trendy black-and-white color scheme.
Modern Home Project Results
With the final results of this contemporary design, you will be able to see earth-toned stucco and large windows. A two-car garage that connects to the mudroom right off of the kitchen for better flow throughout the space. In the spacious backyard, there is a patio and pergola that connects to the main kitchen allowing for a good indoor-outdoor entertaining area.
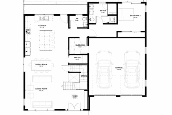
The first floor offers a centrally located staircase, a living, and dining room, and a kitchen area that has an immediate connection with the backyard patio. A powder room is conveniently located in the adjacent hallway leading to a bedroom suite. The first-floor plan offers an accessible bedroom suite for convenience or for those with special needs.
The second-floor plan has an office, three bedrooms, each with its own bathroom, and a central laundry room located in the hallway for everyone’s quick access. Each bathroom offers walk-in showers for ease of use and aesthetic reasons. The second-floor private office is connected to the balcony over the garage overlooking the front yard—an ideal retreat or place to take breaks or deliver messages to the kids running to the bus in the morning.
The master suite features a spacious bathroom with a freestanding tub, walk-in shower, double vanity, and ample storage space. Additionally, the master bedroom offers beautiful views of the backyard from a private cantilevered balcony.
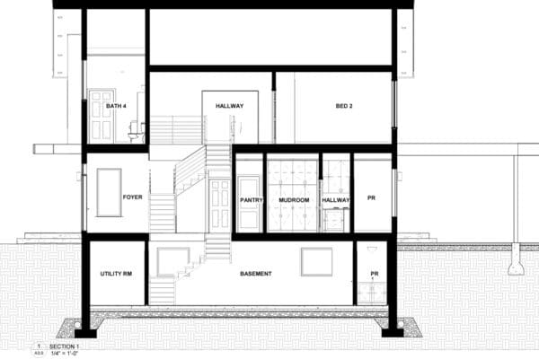
In the basement, we placed a powder room and entertainment room to offer space for additional storage, a gym, and/or a kid’s oasis.
This home is perfect for a family with three or four kids or possibly aging-in-place grandparents offering 21st-century design and amenities.
Challenges
Our client provided us with a desired home size based on the lot size restrictions, footprint square footage requirements, and energy efficiency goals that meet IEC requirements. To incorporate all of the intended design, our design team faced the challenge of carefully maneuvering and organizing the home’s layout providing proper flow, square footage per room, circulation, and organization of spaces. Pionarch made sure the roofs had adequate pitch to get the water and snow off the site and provide enough room for the solar panels. We designed the spaces with high ceilings and planned for the HVAC system to be split into two levels.
Project Details
Project Size: 4,670 square feet
Bedrooms: 5
Bathrooms: 5 Full + 2 Half Baths
Construction Team: ArBa Development
Amenities
- Two-Car Garage
- Laundry Room
- Private Office
- Backyard Patio & Pergola
- Walk-in curbless showers
Client’s Reaction
Coming Soon
